Quadrilocale in vendita

Schio, Via Pio X - Magrè - Cà Trenta
€ 350.000
4 locali 4 locali
100 Mq 100 Mq
2 bagni 2 bagni

Quadrilocale in vendita

Schio, Via Pio X - Magrè - Cà Trenta

Descrizione annuncio

SCHIO – MAGRÈ

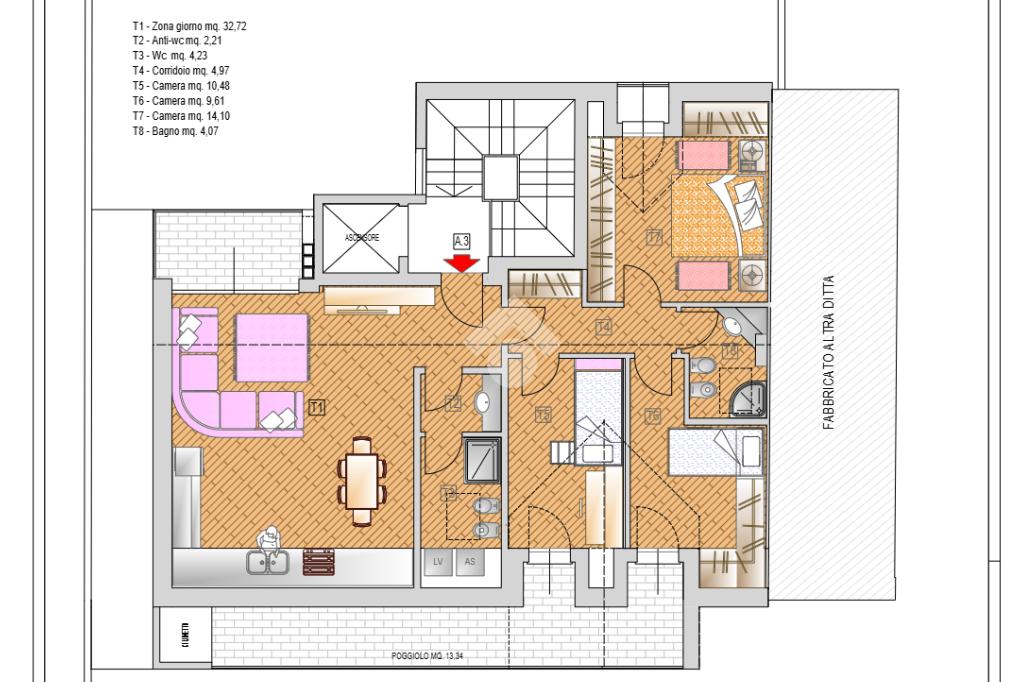
Proponiamo nuova iniziativa immobiliare di recente realizzazione composta da 3 ampi quadrilocali in classe energetica A. L’annuncio è dedicato all’unità posta all’ultimo piano, soluzione di pregio inserita in una palazzina servita da ascensore, caratterizzata da design contemporaneo e finiture di qualità.

L’intervento ha previsto la demolizione e ricostruzione di un fabbricato esistente, con la realizzazione di tre unità abitative progettate con particolare attenzione al risparmio energetico, alla riduzione dei costi di gestione e al comfort abitativo. Gli immobili sono attualmente al coperto e in fase di completamento delle finiture. Ogni appartamento è dotato di riscaldamento radiante a pavimento e impianto fotovoltaico non inferiore a 2 kW, a servizio delle esigenze elettriche e della pompa di calore.

L’abitazione si sviluppa con una luminosa zona giorno open space di circa 40 mq con accesso al terrazzo dotato di caminetto, disimpegno, bagni finestrati e zona notte composta da due camere matrimoniali di 15 mq e una camera doppia di 11 mq. Completano la proprietà box auto privato per due vetture e posto auto scoperto. Le altre due unità al piano primo e secondo, con caratteristiche analoghe, sono proposte a un prezzo pari a 295.000. Possibilità di personalizzazione di finiture e impianti, con predisposizione per antifurto, climatizzazione canalizzata e domotica.

Mostra tutto

Nelle vicinanze

Trasporto pubblico Trasporto pubblico
Schio
Schio
640 m
Trasporto pubblico
370 m
Magrè campo sportivo
Magrè campo sportivo
390 m
Ricariche auto elettriche Ricariche auto elettriche
Schio Centro | Driwe
1,3 Km
Ascopiave Energie | Driwe
1,7 Km
Trattoria Antenna | Driwe
2,1 Km
Scuole Scuole
Scuole
160 m
Scuola primaria S.Benedetto
430 m
Scuola Media Don A.Battistella
460 m
Liceo Artistico "A. Martini"
800 m
Istituto Comprensivo "Arnaldo Fusinato"
1,2 Km
Farmacia Farmacia
Farmacia Magrè
230 m
Farmacia Chemello Dr.ssa Paola
900 m
Farmacia Dottor Breda
1,0 Km
Farmacia Sella
1,0 Km
Farmacia Marchesini
1,1 Km
Ospedali Ospedali
Casa della Salute - ULSS 7 Pedemontana
1,8 Km
Croce Rossa Italiana - Comitato Locale di Schio
1,8 Km
Supermercati Supermercati
Auchan
790 m
Conad
790 m
Aldi
890 m
Lidl
930 m
Famila
980 m
Negozi Negozi
Pasticceria Paganotto
160 m
Alimentari panificio Crosara
370 m
Coronin
550 m
Pretto abbigliamento
590 m
Negozi
610 m
Bar Bar
Bar
350 m
Michy Bar
400 m
Caffé Roma
500 m
Circolo Operaio
670 m
Paraiso
740 m
Ristoranti Ristoranti
Pizzeria da asporto Special
260 m
Pizzeria Special
290 m
Pizza Bonita
400 m
New Concept
520 m
Quadrifoglio
580 m
Mostra tutto

Caratteristiche

Rif.:
61017221
Piano:
4 di 4 con ascensore (Piano su più livelli)
Box:
1
Posti auto:
1
Terrazzi:
2
Camere da letto:
3
Mostra tutto
Prezzo Prezzo
€ 350.000
Rata mutuo Rata mutuo
€ 1.669 / mese
Spese annue Spese annue
€ 0
Proponi il tuo prezzoProponi il tuo prezzo

Classe Energetica

A3
A3
A3
A3
A3
A3
A3
A3
A3
EP invernale del fabbricato:
EP estiva del fabbricato:
Anno di costruzione:
2024
Riscaldamento:
Autonomo
Tipo impianto:
A pavimento
Tipo alimentazione:
Altro

Ti interessa visionare l'immobile?

Fissa un appuntamento  Fissa un appuntamento

Richiedi informazioni

Clicca su Leggi per aprire l'informativa
* Questi campi sono obbligatori

Calcola il tuo mutuo

Semplice e senza impegno
Anticipo

( % )
Mutuo

( % )

pochi semplici passi

inserisci i tuoi dati
Questionario completato
Grazie per aver richiesto un appuntamento senza impegno con un nostro Consulente del Credito e Assicurativo.

Hai inserito correttamente tutti i dati necessari e a breve riceverai una e-mail con un link da convalidare per inviare i tuoi dati.
Affiliato
Studio Magre' Srl
Via Pio X, 29 36015 Schio (VI)
Via Pio X, 29 36015 Schio (VI)
Zona: Schio
Mostra su mappa
Orari: Lunedì 9.00-12.30 15.00-19.30 Martedì 9.00-12.3015.00-19.30 Mercoledì 9.00-12.3015.00-19.30 Giovedì 9.00-12.3015.00-19.30 Venerdì 9.00-12.3015.00-19.30 Sabato 9.00-13.00Chiuso
Affiliato
Studio Magre' Srl
Via Pio X, 29 36015 Schio (VI)

2026 Tecnocasa Franchising S.p.A. - P. IVA 08365160152 - Via Monte Bianco 60/A 20089 Rozzano (MI). Ogni agenzia ha un proprio titolare ed è autonoma. Privacy policy | Policy utilizzo | Cookie policy