Casa indipendente in vendita

Schio, Contrà Barona - Magrè - Cà Trenta
€ 97.000
7 locali 7 locali
259 Mq 259 Mq
1 bagno 1 bagno

Casa indipendente in vendita

Schio, Contrà Barona - Magrè - Cà Trenta

Descrizione annuncio

SCHIO – MAGRÈ

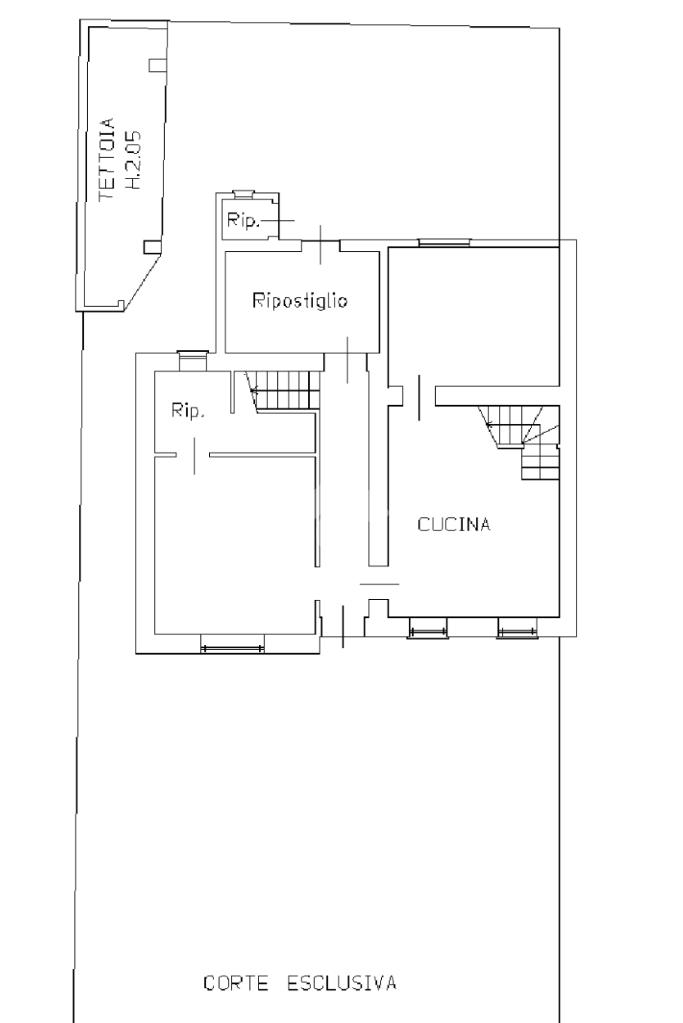
In posizione centrale nel cuore del quartiere di Magrè, proponiamo ampia casa affiancata su un lato, caratterizzata da un generoso giardino privato di circa 300mq, ideale per chi desidera vivere in un contesto residenziale tranquillo ma comodo a tutti i principali servizi.

L’immobile si sviluppa su tre livelli ed è stato originariamente concepito per ospitare due nuclei familiari, il che lo rende estremamente versatile anche per chi valuta soluzioni bifamiliari o interventi di ristrutturazione con finalità d’investimento.

Al piano terra troviamo due soggiorni, due cucine abitabili e una lavanderia, distribuiti in modo funzionale e serviti da due vani scala separati che conducono alla zona notte. I piani superiori sono composti complessivamente da tre camere matrimoniali, una camera singola e una stanza di passaggio, ideale come studio, cabina armadio o sala hobby.

Completano la proprietà utili spazi accessori come un ripostiglio esterno e un locale tipo fienile, con accesso diretto dal giardino retrostante.

Una soluzione interessante per famiglie numerose o per chi cerca ampie metrature in una zona servita e ben collegata, ma anche un’occasione per piccole imprese o investitori, che desiderano valorizzare l’immobile con un progetto di riqualificazione o frazionamento.

Mostra tutto

Nelle vicinanze

Trasporto pubblico Trasporto pubblico
Schio
Schio
920 m
Trasporto pubblico
630 m
Magrè campo sportivo
Magrè campo sportivo
650 m
Ricariche auto elettriche Ricariche auto elettriche
Trattoria Antenna | Driwe
1,3 Km
Schio Centro | Driwe
1,5 Km
Ascopiave Energie | Driwe
2,4 Km
Scuole Scuole
Scuola primaria S.Benedetto
430 m
Scuola Media Don A.Battistella
520 m
Scuole
760 m
Liceo Artistico "A. Martini"
780 m
Scuola Dell'Infanzia Sacro Cuore
980 m
Farmacia Farmacia
Farmacia Magrè
660 m
Farmacia Chemello Dr.ssa Paola
1,0 Km
Farmacia Pasubio
1,1 Km
Farmacia Dottor Breda
1,1 Km
Farmacia Sella
1,2 Km
Ospedali Ospedali
Casa della Salute - ULSS 7 Pedemontana
1,7 Km
Croce Rossa Italiana - Comitato Locale di Schio
1,8 Km
Supermercati Supermercati
Conad
190 m
Famila
840 m
D-Più
1,1 Km
Max Store
1,4 Km
Auchan
1,6 Km
Negozi Negozi
Panificio La Vecia Magrè
160 m
Negozi
330 m
Pretto abbigliamento
360 m
Coronin
450 m
Il Fornaio
560 m
Bar Bar
Bar
150 m
Circolo Operaio
190 m
Isetta
200 m
Al Combattente
270 m
Circolo Cattolico
340 m
Ristoranti Ristoranti
Da Loris
90 m
Al Tagliere
200 m
Quadrifoglio
460 m
Pizza Bonita
520 m
La Perla
960 m
Mostra tutto

Caratteristiche

Rif.:
61072287
Piano:
Su più livelli di 3
Totale piani:
3
Camere da letto:
4
Arredamento:
Parziale
Condizionamento:
Assente
Mostra tutto
Prezzo Prezzo
€ 97.000
Rata mutuo Rata mutuo
€ 460 / mese
Spese annue Spese annue
€ 0
Proponi il tuo prezzoProponi il tuo prezzo

Classe Energetica

G
G
G
G
G
G
G
G
G
EP invernale del fabbricato:
EP estiva del fabbricato:
Anno di costruzione:
1900
Riscaldamento:
Autonomo
Tipo impianto:
Ad aria
Tipo alimentazione:
Metano

Ti interessa visionare l'immobile?

Fissa un appuntamento  Fissa un appuntamento

Richiedi informazioni

Clicca su Leggi per aprire l'informativa
* Questi campi sono obbligatori

Calcola il tuo mutuo

Semplice e senza impegno
Anticipo

( % )
Mutuo

( % )

pochi semplici passi

inserisci i tuoi dati
Questionario completato
Grazie per aver richiesto un appuntamento senza impegno con un nostro Consulente del Credito e Assicurativo.

Hai inserito correttamente tutti i dati necessari e a breve riceverai una e-mail con un link da convalidare per inviare i tuoi dati.
Affiliato
Studio Magre' Srl
Via Pio X, 29 36015 Schio (VI)
Via Pio X, 29 36015 Schio (VI)
Zona: Schio
Mostra su mappa
Orari: Lunedì 9.00-12.30 15.00-19.30 Martedì 9.00-12.3015.00-19.30 Mercoledì 9.00-12.3015.00-19.30 Giovedì 9.00-12.3015.00-19.30 Venerdì 9.00-12.3015.00-19.30 Sabato 9.00-13.00Chiuso
Affiliato
Studio Magre' Srl
Via Pio X, 29 36015 Schio (VI)

2026 Tecnocasa Franchising S.p.A. - P. IVA 08365160152 - Via Monte Bianco 60/A 20089 Rozzano (MI). Ogni agenzia ha un proprio titolare ed è autonoma. Privacy policy | Policy utilizzo | Cookie policy