Casa indipendente in vendita

Torrebelvicino, Via G. Marconi
€ 67.000
4 locali 4 locali
240 Mq 240 Mq
1 bagno 1 bagno

Casa indipendente in vendita

Torrebelvicino, Via G. Marconi

Descrizione annuncio

PIEVEBELVICINO

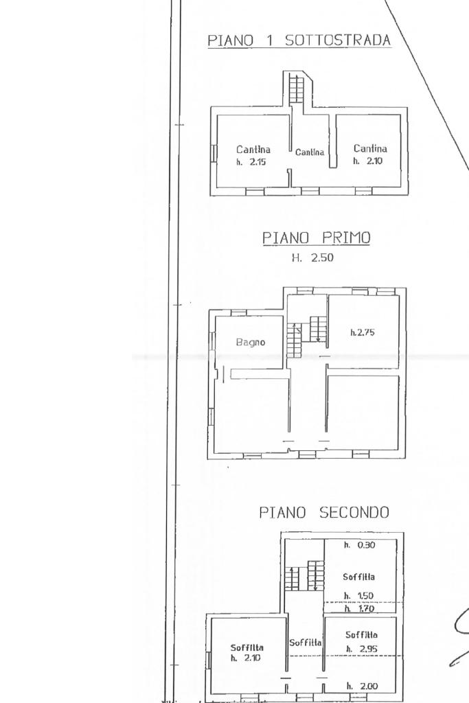
Proponiamo in vendita casa affiancata su un lato con ingresso indipendente e lotto esclusivo di circa 470 mq.

L’immobile sviluppa una pianta di circa 90mq con una cubatura disponibile di 750mc, offrendo interessanti possibilità di ristrutturazione e ridefinizione degli spazi secondo le proprie esigenze.

La proprietà si presta a totale rinnovo, rappresentando una soluzione ideale per chi desidera realizzare un’abitazione su misura o per imprese e investitori alla ricerca di un intervento di valorizzazione.

È inoltre presente la possibilità di subentrare ad un progetto già approvato dal Comune, relativo a un piano di intervento per il recupero e la completa riqualificazione dell’immobile.

Mostra tutto

Nelle vicinanze

Trasporto pubblico Trasporto pubblico
Schio
Schio
2,7 Km
Trasporto pubblico
690 m
Magrè campo sportivo
Magrè campo sportivo
2,6 Km
Ricariche auto elettriche Ricariche auto elettriche
Trattoria Antenna | Driwe
980 m
DriWe Torrebelvicino
1,4 Km
Schio Centro | Driwe
2,9 Km
Scuole Scuole
Scuola Elementare "D. Alighieri"
1,2 Km
Scuola Media Statale "G.Carducci"
1,2 Km
Scuola Dell'Infanzia Sacro Cuore
1,6 Km
Scuole
1,6 Km
Scuola primaria G.B. Cipani
1,7 Km
Farmacia Farmacia
Farmacia Eredi Dr. G.Chemello
1,3 Km
Farmacia Pasubio
1,6 Km
Farmacia Magrè
2,6 Km
Farmacia Chemello Dr.ssa Paola
2,7 Km
Farmacia Dottor Breda
2,7 Km
Ospedali Ospedali
Casa della Salute - ULSS 7 Pedemontana
2,8 Km
Croce Rossa Italiana - Comitato Locale di Schio
2,9 Km
Supermercati Supermercati
PRIX
630 m
Eurospar
1,3 Km
D-Più
1,7 Km
Conad
2,1 Km
Famila
2,4 Km
Negozi Negozi
Negozi
1,1 Km
La Buona Terra
1,7 Km
SVELTO A&O
1,7 Km
Panificio La Vecia Magrè
2,1 Km
Non solo pane
2,1 Km
Bar Bar
West Bar
630 m
Circolo Operaio Arci Poleo
1,7 Km
Casa del Giovane Poleo
1,7 Km
Cuorum
1,7 Km
Circolo Cattolico
1,8 Km
Ristoranti Ristoranti
Taverna degli Angeli
30 m
Otto & Giò
530 m
HT Torre
770 m
Trattoria All'Antenna
940 m
Podere La Torre
980 m
Mostra tutto

Caratteristiche

Rif.:
61173151
Piano:
3 di 3 (Piano su più livelli)
Posti auto:
1
Camere da letto:
3
Arredamento:
Assente
Condizionamento:
Assente
Mostra tutto
Prezzo Prezzo
€ 67.000
Rata mutuo Rata mutuo
€ 320 / mese
Spese annue Spese annue
€ 0
Proponi il tuo prezzoProponi il tuo prezzo

Classe Energetica

F
F
F
F
F
F
F
F
F
EP globale non rinnovabile:
123.78 kW h/m² anno
EP globale rinnovabile:
383.12 kW h/m² anno
EP invernale del fabbricato:
EP estiva del fabbricato:
Anno di costruzione:
1940
Riscaldamento:
Assente

Ti interessa visionare l'immobile?

Fissa un appuntamento  Fissa un appuntamento

Richiedi informazioni

Clicca su Leggi per aprire l'informativa
* Questi campi sono obbligatori

Calcola il tuo mutuo

Semplice e senza impegno
Anticipo

( % )
Mutuo

( % )

pochi semplici passi

inserisci i tuoi dati
Questionario completato
Grazie per aver richiesto un appuntamento senza impegno con un nostro Consulente del Credito e Assicurativo.

Hai inserito correttamente tutti i dati necessari e a breve riceverai una e-mail con un link da convalidare per inviare i tuoi dati.
Affiliato
Studio Magre' Srl
Via Pio X, 29 36015 Schio (VI)
Via Pio X, 29 36015 Schio (VI)
Zona: Schio
Mostra su mappa
Orari: Lunedì 9.00-12.30 15.00-19.30 Martedì 9.00-12.3015.00-19.30 Mercoledì 9.00-12.3015.00-19.30 Giovedì 9.00-12.3015.00-19.30 Venerdì 9.00-12.3015.00-19.30 Sabato 9.00-13.00Chiuso
Affiliato
Studio Magre' Srl
Via Pio X, 29 36015 Schio (VI)

2026 Tecnocasa Franchising S.p.A. - P. IVA 08365160152 - Via Monte Bianco 60/A 20089 Rozzano (MI). Ogni agenzia ha un proprio titolare ed è autonoma. Privacy policy | Policy utilizzo | Cookie policy